Одноконтурный настенный газовый котел FEDERICA BUGATTI 32B Varme - это надежный и доступный настенный газовый котел, работающий как на природном газу (стандартно), так и на сжиженном газу (опция - требуется перенастройка). Отлично подойдет для дома, дачи, таунхауса, квартиры, а также для промышленных, производственных и складских помещений. Бесшумная работа, компактные размеры и изящный дизайн, благодаря чему подойдет практически для всех типов помещений и отлично впишется в любой интерьер. Десять степеней защиты обеспечивают бесперебойную работу и долговечность. Модель оснащена интуитивно понятными органами управления и хорошо читаемым жидкокристаллическим дисплеем, благодаря чему управление котлом становится легкой задачей и не вызывает проблем даже у пожилых пользователей. Отличительной особенностью котлов FEDERICA BUGATTI Varme является низкий расход газа благодаря высокому КПД, качественным комплектующим и удачной компоновке.
Имеет выход термостата и цифровой шины OpenTherm, позволяющие организовать удаленное управление и контроль работы котла через мобильное приложение. Для большего комфорта пользователя имеет погодозависимую автоматику, благодаря которой котел сам выбирает нужное значение температуры теплоносителя в зависимости от температуры воздуха на улице, что позволяет не перегревать помещение и пропадает необходимость ручной корректировке параметров работы котла при значительном изменении температуры на улице. Активируется при подключении опционального датчика наружного воздуха. При правильном применении комнатного термостата и погодозависимой автоматики, экономия газа может достигать до 30%.
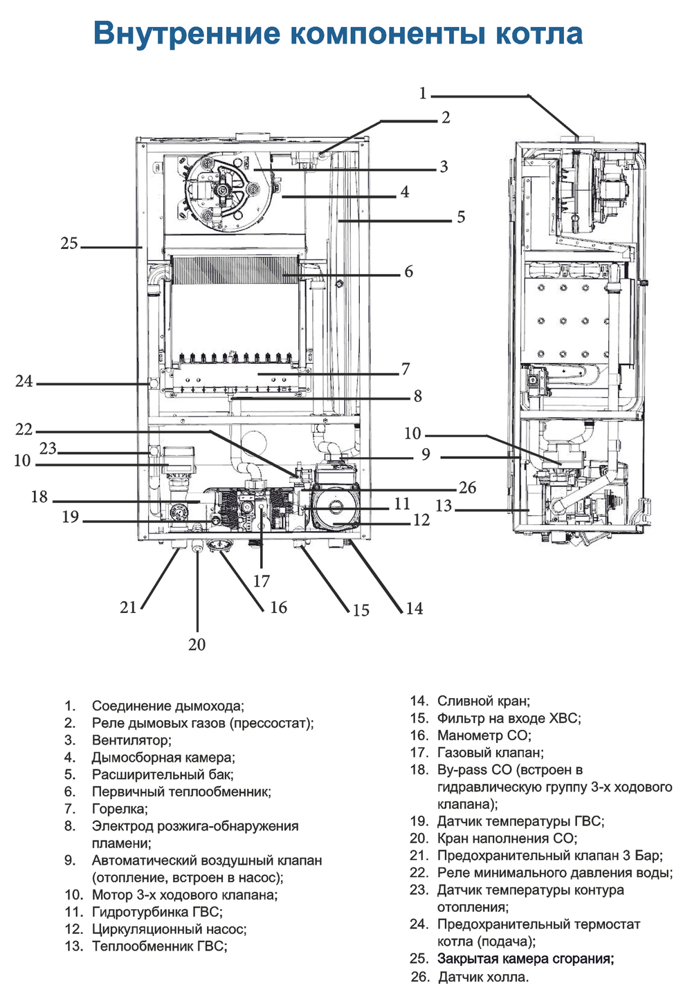
Котел оснащен лучшими и хорошо зарекомендовавшими себя Европейскими комплектующими:
- циркуляционный насос Grundfos - Дания
- газовый клапан Sit Sigma 845 - Италия
- горелка Polidoro - Италия
- основной теплообменник Valmex - Италия
- латунная гидрогруппа Arcell - Турция
- расширительный бак Onaysan - Турция
- электропривод трёхходового клапана Elbi - Италия
- прессостат Huba Control - Швейцария
- дымосос Fime - Польша
Обеспечивает систему отопления в жилых или нежилых помещениях площадью до 320м². Водоснабжение осуществляется с помощью дополнительного бойлера косвенного нагрева. Имеет сервисные настройки: максимальная мощность 0-100%, мощность розжига, выбег насоса, время выхода на максимальную мощность, минимальное время работы на отопление, что позволяет сервисному инженеру при запуске адаптировать котел для работы на небольших площадях чтобы избежать тактования котла которое ведет к ускоренному износу всех деталей. Надежность и высокое качество подтверждены гарантией на пять лет. Обеспечивает максимальный комфорт, простоту использования и обслуживания.
ОСОБЕННОСТИ И ПРЕИМУЩЕСТВА: - Гарантия 5 лет
- Одноконтурный (отопление)
- Встроенный трехходовой клапан для подключения бойлера ГВС
- Вид топлива: природный и сжиженный газ
- Бесшумная работа
- Электронная модуляция пламени
- Встроенная цифровая шина OpenTherm (для организации удаленного управления)
- Интеллектуальная система защиты
- Информативный ЖК-дисплей, автоматическая система диагностики
- Простота установки и обслуживания
- Газ-контроль
- Защита от замерзания, от перегрева, от блокировки насоса
- Предохранительный клапан
- Подключение теплого пола
- Подключение внешнего управления
- Индикация включения
- Автоподжиг
- Термометр, манометр
- Электронное управление
- Воздухоотводчик
В последнее время у потенциальных потребителей часто возникает вопрос о наличии запасных частей и их стоимости. Спешим сообщить, что для котлов FEDERICA BUGATTI Varme отсутствуют какие-либо сложности с поставками запасных частей и их стоимость адекватна стоимости самого котла, а не в разы завышена как у покинувших Россию брендов.
